vista terrace

Tidepoint

Project Scope:

Large-scale mixed-use commercial and residential development on Treasure Island in San Francisco, transforming underdeveloped land into a community- and arts-centered destination.

Description:

The tourism-driven master plan integrates a public library, local market, and live-work housing for artists to foster cultural exchange and economic vitality. Rooted in biophilic design principles, the project emphasizes indoor-outdoor connectivity, access to nature, and panoramic views of the city skyline, creating a vibrant waterfront community that blends living, working, and gathering.

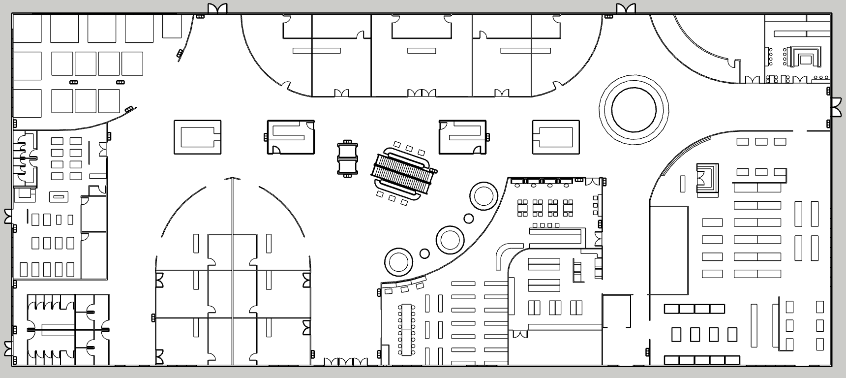
Floor Plan & Layout

Rendered Interiors